视频课程精选
- 2018-12-29 13:00 发布
- 浏览 837 次
- 下载 0 次
【毕业设计】2400L超市冷冻展示柜
8.5
分
-
大小: 12M价格: 40 百家币更新时间: 2018-12-29
资料简介
一、资料介绍:
1)、毕业设计原文
2)、毕业设计开题报告
3)、毕业设计外文翻译
4)、毕业设计答辩申请
5)、毕业设计配套系统图
6)、毕业设计配套组装图
7)、毕业设计配套零部件图
8)、毕业设计配套电气图
二、内容摘要:
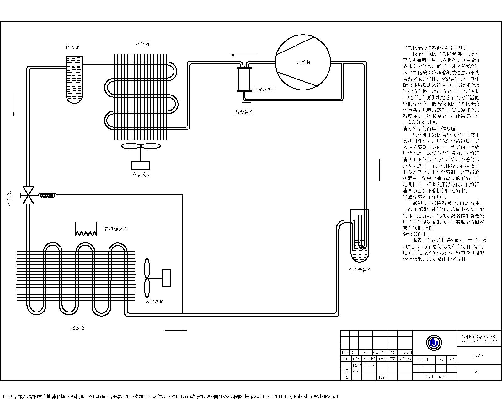
本设计简要的介绍了2400L立式封闭式食品冷冻展示柜的设计情况,其中制冷剂采用CO2。探讨了食品冷冻陈列柜的优点以及其发展前景。为了更好的设计,首先对制冷剂和制冷压缩机进行分析比较。制冷剂方面,简单介绍了其发展过程,物性参数及其对环境的影响,从应用前景方面考虑,最后确定以CO2作为制冷工质。
压缩机方面,分析比较各类型式压缩机的发展概况和大致应用范围及其制冷量的大小,确定使用活塞式压缩机为本设计的压缩机。根据需求的制冷量对冷凝器和蒸发器进行全新设计,提高了产品的性能。在设计的基础上,由所需设计参数选择合适的风机、节流机构和辅助设备。通过制冷剂制冷循环的热力计算、冷凝器的设计计算、蒸发器的设计计算、毛细管的设计计算,选择压缩机、风机,最终进行校核。
三、部分资料截图:
版权声明
1、转载或引用本网站内容须注明原网址,并标明本网站网址(http://www.zhilengbj.cn)。
2、本网站所有视频、电子书、图纸、文献等均来自网络,仅供大家交流与学习,不得用于商业用途
3、如果侵犯了你的权益,请发邮件至:coolgou1987@126.com,我们会及时删除侵权内容,谢谢合作!。
4、对不遵守本声明或其他违法、恶意使用本网站内容者,本网站保留追究其法律责任的权利。
唯一网址: http://www.zhilengbj.cn/thread-52-1-1.html
1)、毕业设计原文
2)、毕业设计开题报告
3)、毕业设计外文翻译
4)、毕业设计答辩申请
5)、毕业设计配套系统图
6)、毕业设计配套组装图
7)、毕业设计配套零部件图
8)、毕业设计配套电气图
二、内容摘要:
本设计简要的介绍了2400L立式封闭式食品冷冻展示柜的设计情况,其中制冷剂采用CO2。探讨了食品冷冻陈列柜的优点以及其发展前景。为了更好的设计,首先对制冷剂和制冷压缩机进行分析比较。制冷剂方面,简单介绍了其发展过程,物性参数及其对环境的影响,从应用前景方面考虑,最后确定以CO2作为制冷工质。
压缩机方面,分析比较各类型式压缩机的发展概况和大致应用范围及其制冷量的大小,确定使用活塞式压缩机为本设计的压缩机。根据需求的制冷量对冷凝器和蒸发器进行全新设计,提高了产品的性能。在设计的基础上,由所需设计参数选择合适的风机、节流机构和辅助设备。通过制冷剂制冷循环的热力计算、冷凝器的设计计算、蒸发器的设计计算、毛细管的设计计算,选择压缩机、风机,最终进行校核。
三、部分资料截图:
版权声明
1、转载或引用本网站内容须注明原网址,并标明本网站网址(http://www.zhilengbj.cn)。
2、本网站所有视频、电子书、图纸、文献等均来自网络,仅供大家交流与学习,不得用于商业用途
3、如果侵犯了你的权益,请发邮件至:coolgou1987@126.com,我们会及时删除侵权内容,谢谢合作!。
4、对不遵守本声明或其他违法、恶意使用本网站内容者,本网站保留追究其法律责任的权利。
唯一网址: http://www.zhilengbj.cn/thread-52-1-1.html
冰箱冷柜下载排行
名称
趋势
下载量
-
一、资料介绍: 1)、毕业设计原文 2)、毕业设计开题报告 3)、毕业...[详情]
冰箱冷柜最新收录
名称
趋势
浏览量
-
一、资料介绍: 1)、毕业设计原文 2)、毕业设计开题报告 3)、毕业...[详情]
热门排行

















