视频课程精选
- 2018-12-29 12:57 发布
- 浏览 942 次
- 下载 0 次
【毕业设计】1800升超市风幕展示柜
8.5
分
-
大小: 12M价格: 40 百家币更新时间: 2018-12-29
资料简介
一、资料介绍:
1)、毕业设计原文
2)、毕业设计开题报告
3)、毕业设计外文翻译
4)、毕业设计答辩申请
5)、毕业设计配套系统图
6)、毕业设计配套组装图
7)、毕业设计配套零部件图
8)、毕业设计配套电气图
二、内容摘要:
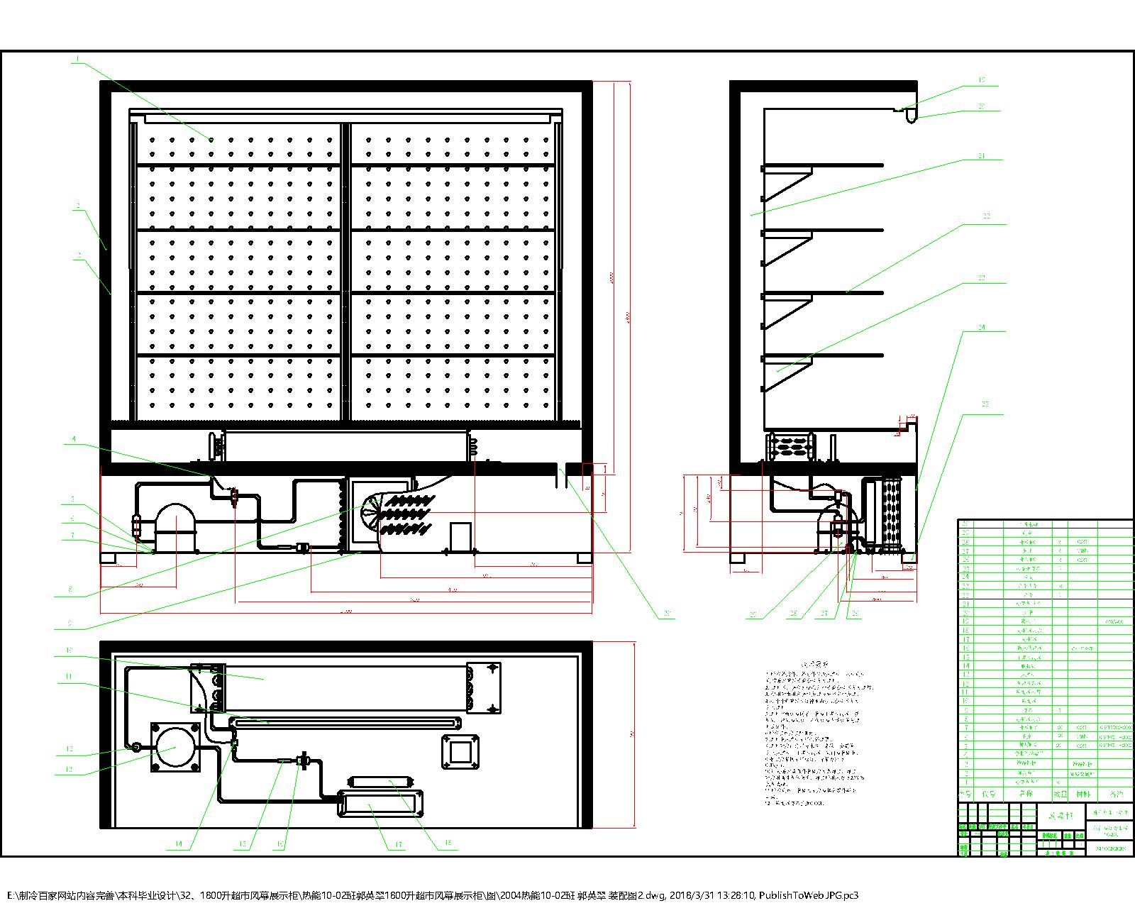
由于展示柜具有美观大方、方便消费者购物取货,因此为了满足市场对展示柜的强烈需求,就此对超市风幕展示柜进行详细的设计。本设计简要的介绍了展示柜的特点以及技术现状和发展趋势。为了提高展示柜的运行效率,首先对制冷剂和压缩机进行分析比较。经过比较分析制冷剂的发展现状,物性参数及其对环境的影响,从综合方面考虑,决定以R134a作为制冷工质。
根据展示柜的容量,对展示柜的外形结构进行设计。进行展示柜的负荷计算以及制冷系统的热力计算。压缩机方面,比较分析了各种类型压缩机的发展概况、应用范围及其制冷量的大小,确定选用活塞式压缩机为本设计压缩机,并对压缩机进行热力计算。根据所求的制冷量及热负荷对冷凝器和蒸发器进行全面的设计,提高产品的性能。在提高效率的基础上,根据设计参数选择合适的风机、节流机构和辅助设备。
关键词 展示柜/冷凝器/蒸发器/风幕
三、部分资料截图:
版权声明
1、转载或引用本网站内容须注明原网址,并标明本网站网址(http://www.zhilengbj.cn)。
2、本网站所有视频、电子书、图纸、文献等均来自网络,仅供大家交流与学习,不得用于商业用途
3、如果侵犯了你的权益,请发邮件至:coolgou1987@126.com,我们会及时删除侵权内容,谢谢合作!。
4、对不遵守本声明或其他违法、恶意使用本网站内容者,本网站保留追究其法律责任的权利。
唯一网址: http://www.zhilengbj.cn/thread-54-1-1.html
1)、毕业设计原文
2)、毕业设计开题报告
3)、毕业设计外文翻译
4)、毕业设计答辩申请
5)、毕业设计配套系统图
6)、毕业设计配套组装图
7)、毕业设计配套零部件图
8)、毕业设计配套电气图
二、内容摘要:
由于展示柜具有美观大方、方便消费者购物取货,因此为了满足市场对展示柜的强烈需求,就此对超市风幕展示柜进行详细的设计。本设计简要的介绍了展示柜的特点以及技术现状和发展趋势。为了提高展示柜的运行效率,首先对制冷剂和压缩机进行分析比较。经过比较分析制冷剂的发展现状,物性参数及其对环境的影响,从综合方面考虑,决定以R134a作为制冷工质。
根据展示柜的容量,对展示柜的外形结构进行设计。进行展示柜的负荷计算以及制冷系统的热力计算。压缩机方面,比较分析了各种类型压缩机的发展概况、应用范围及其制冷量的大小,确定选用活塞式压缩机为本设计压缩机,并对压缩机进行热力计算。根据所求的制冷量及热负荷对冷凝器和蒸发器进行全面的设计,提高产品的性能。在提高效率的基础上,根据设计参数选择合适的风机、节流机构和辅助设备。
关键词 展示柜/冷凝器/蒸发器/风幕
三、部分资料截图:
版权声明
1、转载或引用本网站内容须注明原网址,并标明本网站网址(http://www.zhilengbj.cn)。
2、本网站所有视频、电子书、图纸、文献等均来自网络,仅供大家交流与学习,不得用于商业用途
3、如果侵犯了你的权益,请发邮件至:coolgou1987@126.com,我们会及时删除侵权内容,谢谢合作!。
4、对不遵守本声明或其他违法、恶意使用本网站内容者,本网站保留追究其法律责任的权利。
唯一网址: http://www.zhilengbj.cn/thread-54-1-1.html
冰箱冷柜下载排行
名称
趋势
下载量
-
一、资料介绍: 1)、毕业设计原文 2)、毕业设计开题报告 3)、毕业...[详情]
冰箱冷柜最新收录
名称
趋势
浏览量
-
一、资料介绍: 1)、毕业设计原文 2)、毕业设计开题报告 3)、毕业...[详情]
热门排行

















